LED-Trailer 'Event 4500 LED'
Die mobile LED-Wand auf 4 Rädern
Mobiler Video-Trailer mit einer 11,25 qm LED-Videowand
Aufbau durch 1 Person in 20 Minuten
Lediglich 1 Stromanschluss mit 16A nötig
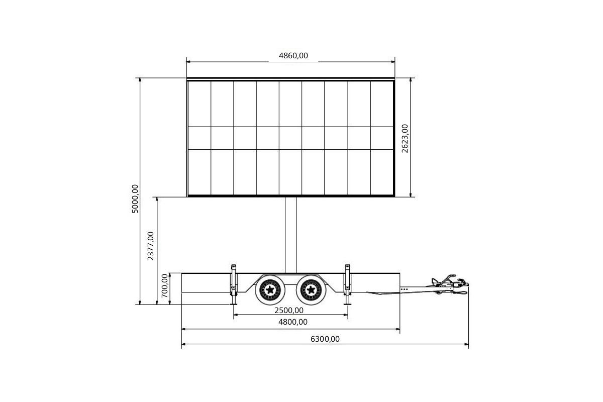
LED-Trailer-Maße
|
Länge |
Breite |
Höhe | |
|---|---|---|---|
|
aufgebaut |
6,76 m |
3,47m |
5,00 m |
|
fahrbereit |
6,30 m |
2,10 m |
3,40 m |
Technische Details
feuerverzinktes Stahl-Teleskop
schnelle und einfache Handhabung
kinderleicht in kurzer Zeit aufgebaut
keine weiteren Helfer nötig
Betrieb ist bei Regen, starker Sonneneinstrahlung und Wind bis Windstärke 7 möglich







